“真正的T-90坦克”,性能更加先进,为何却惨遭淘汰?
“真正的T-90坦克”,性能更加先进,为何却惨遭淘汰?

自1993年首次亮相库宾卡武器装备展览会以来,T-90主战坦克一直是各国关注的焦点。不过,在研制T-90原型车的同时,下塔吉尔还提出了更为先进的187工程,不少网友都称其为“ 另一种更加先进的T-90坦克 ”,并为187工程的落马感到惋惜。187工程到底改了什么?又是缘何落马?

1981年苏共中央和部长会议下达了T-72A的改进命令,从而诞生了大家所熟知的T-72B坦克,工程代号为184。按常理判断,在187工程诞生前应当还有两个型号,事实也确实如此。185工程就是给T-72B安装了新型125mm2A66坦克炮,186工程则是测试了焊接炮塔,新型火炮,2V16系列X型柴油发动机和新变速箱。虽然185和186工程都没投产,却为设计局积累了经验。1987年,苏联部长会议正式下达了“改进-88“项目,由下塔吉尔的新任总设计师弗拉基米尔·波特金负责监督,实际领导人为副总设计师谢尔加乔夫。

▲185工程


▲测试中的186工程

▲ 谢尔加乔夫
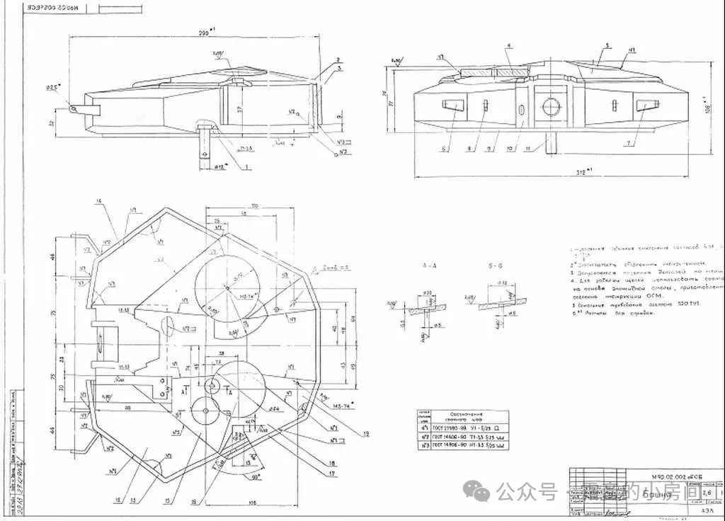
虽然187工程遵循了经典的苏式坦克布局,但是不少设计与此前的T-64、T-72和T-80有较大区别。尽管下塔吉尔前前后后一共搓了6辆区别不小的原型车,却不妨碍先对其进行总体性介绍,之后再深入样车的发展历程。

▲187工程车体示意图
就底盘与车体而言,187工程的车体更长,战斗重量达到约50吨。部分原型车的正面防护结构有了较大变化,使用了倾角更小的防护设计,搭配更高强度的电渣重熔钢与孔雀石爆反,使得车体的正面防护水平有了较大提升。同时,驾驶员的座位更为靠后,舱门及光学设备被布置在车体顶部,消除了车体正面的弱点三角区,进一步增强了防护性能。
早期样车依然使用铸造炮塔,但是后期样车已经换上了焊接炮塔,不仅厚度更高,宽度也是同期最宽,使得炮塔内部空间有所增加,能够更加合理的安放车内电子设备。就连“大眼萌妹”T-90标志性的窗帘光电对抗系统,也同样安装在187工程上。最后,原型车还配备了下塔吉尔,车里雅宾斯克和两家特殊设计局共同研制的信息控制系统,能够自动化部分驾驶操作,减少驾驶员的工作量。

▲T-72B及187工程各阶段的复合装甲示意图

▲187工程模型的炮塔示意图
在动力系统方面,187工程曾经测试过多种发动机,包括188工程用过的V-84MS柴油发动机和T-80系使用过的燃气轮机,但最终入了下塔吉尔法眼的,还是车里雅宾斯克研制的2V16-2,或称A-85-2大功率柴油发动机。

▲186工程上使用的2V16-2发动机
2V-16系发动机的研制工作始于70年代初,是一种X型发动机,简单来说就是两个V型发动机相对放置,共用一个曲轴。因这一系列均为16缸发动机,因此2V-16这个名称可谓相当应景。2V系列发动机通用性高达70%,相对紧凑,尺寸也小,16缸版本的体积仅为1.06立方米,与之对比,12缸的V-84的体积则达到了1.2立方米。可惜2V16-2只是燃气轮机GTD-1000T的备胎,后者得到了苏联高层的全力支持,自然也就没车里雅宾斯克什么事。
2V16-2发动机的另一个特点便是采用了动力包设计,在苏联国内开创了先河。MTU-2动力包的体积为3.58立方米,可整体吊装,能在1小时内完成更换。此外,坦克的悬挂系统也有一定改进,多了一对减震器,履带更换为了RMSh。

▲2V16-2(A85-2)

▲785工程上安装的MTU-2
为了提升坦克的火力,187工程配备了125mm2A66坦克炮。新型火炮的炮管长度与2A46相同,为48倍径,但是药室容积更大,且镀铬技术更为完善,所以能够使用更为强力的弹药。火炮炮口安装有制退器,但在实际测试中这一设计经常出现问题。设计局为火炮研制了新型3BM39贫铀穿甲弹与9M125炮射导弹,旨在进一步提升坦克的火力。12.7mm高射机枪不再需要像T-72上那样探出大半个身子,车长可直接在车内遥控操作。在火控系统方面,187工程采用了1A45T火控系统,引入了微型插座设计,大大减少了电路体积和重量。


▲2A66坦克炮



▲新型穿甲弹和炮射导弹
总体而言,187工程的升级可谓方方面面都有。不过,这些改进并非一蹴而就,下塔吉尔前前后后分批次生产了6辆原型车,每个批次的原型车都有较大改动,同一批次的原型车细节也有所不同。接下来,我们就来聊聊样车的发展历程。

▲V-84MS发动机
1988年,187工程1号原型车下线,于当年8月通过工厂测试。1号原型车主要用于行驶测试,当年一共行驶了3000多公里。由于测试中暴露的一系列问题,1号车之后被回炉重造,作为3号原型车再度出山。就设计而言,1号原型车与早期T-90较为接近,仍使用T-72B的铸造炮塔、“接触-5”爆反和2A46M滑膛炮,发动机则更换为840马力的V-84MS,加装了“窗帘”光电对抗系统。
2号原型车与1号原型车的主要区别在于更换了巴尔瑙尔研制的1000马力的KD-34涡轮增压柴油发动机,在土库曼斯坦的高温环境下进行了近1800公里的行驶测试,最后被送至靶场进行打靶测试,成果被用于改进防护设计。这辆饱经炮弹洗礼的样车肯定是不好继续用了,只能报废处理。

▲焊接炮塔
3号原型车虽然使用了1号车的底子,但其各方面的改进不可谓不多。由于3号车需要进行各种测试,车体结构可能在此过程中损坏,因此实际生产的3号原型车并不完整。坦克的炮塔设计由铸造改为焊接,且第5对负重轮额外加装了液压减震器,但是3号原型车最大的特点是下线后换装了燃气轮机与辅助动力系统,一说为GTD-1250,一说为GTD-1500。下塔吉尔给187工程上燃气轮机的原因也很简单,首先证明一下自己也有这个实力搓燃气轮机坦克,其次则是想借着燃气轮机展示大功率柴油发动机更好用。3号车在完成工厂测试后,前往莫斯科附近的库宾卡测试场进行了行驶测试,最后到阿尔扎马斯进行了三防综合测试。


▲3号车
4号原型车的设计与前3辆又有了较大变化。坦克的车体与换装燃气轮机前的3号原型车类似,但是发动机更换为了A-85-2柴油发动机,最高功率为1200马力。焊接炮塔的外形也有所改变,中部及后部更宽,主炮更换为了2A66。坦克的行走系统也有所改进,使用了新的诱导轮和履带。车体上的接触-5则被新的孔雀石爆反替代,且4号车大量使用了可快速更换的高硬度钛合金板,以至于后来4号车转移到库宾卡时,所有钛合金板都换成了30毫米钢板,用4枚螺栓固定在车体正面。4号车于1990年7月进行了首次测试,于1991年12月完成,行驶里程超过12000公里,进行了180次实弹射击。



▲4号车
187工程的5号原型车也与4号车区别较大。在车体设计方面,5号车进一步加长了车体长度,裸车长度达到7.2米。原先的大倾角首上变为了小倾角大厚度结构,去除了正面的三角区弱点区域。5号车的炮塔被进一步拓宽,可以说是当时最宽的苏联焊接炮塔设计,侧面防护能力得到了增强,后部有一个大型铝制工具箱。
火控系统升级为了1A45M,为炮长配备了龙舌兰-2热成像夜视设备。动力系统使用与4号车相同的A-85-2柴油发动机,适配机械传动。车体后部的冷却系统也有所改动,4号车的4个排气窗口合并成了5号车上的两个大窗口。5号车于1992年4月到1993年1月间进行了370小时的测试,行驶里程达到6400公里。

▲5号和6号车车体



▲5号车
6号原型车与5号车总体区别不大,主要特征是使用了液力机械传动,因此两者的车尾略有不同。由于2A66火炮的测试并不成功,6号车换回了2A46M火炮。相关测试工作于1992年6月开始,一直进行到1993年7月底。6号车总计完成了超过500小时的测试,行驶里程超过10000公里。



▲6号车1比10模型
此外,还有名为187A工程的7号方案和8号方案。前者使用7对轮底盘,后者进一步安装了152mmLP-83火炮和自动装弹机。这门152就是各位战雷玩家所熟知的292工程上的同一门炮,算是进一步增强187工程火力的一个设想。

▲187A车体示意图
1990年,装甲兵总局在库宾卡召开会议,评估第四代坦克的技术方案。苏联的三大坦克厂纷纷掏出自己的得意之作,旨在赢得新一代坦克的宝座。下塔吉尔的“宝剑”便是187工程,虽然其性能确实比T-72B和T-90优秀,不少设计也很创新,但在另外两家的“科幻产品”面前属是有点不够看了。
与哈尔科夫的477工程以及列宁格勒的299工程相比,187工程这个魔改3代还是太保守了。实际上,苏联军方也偏向于采用477工程。由此也可以看出,187工程其实并非188工程的直接竞争者,两者只是同一时期的平行设计。根据赫洛波托夫的说法,装甲兵总局在1990年还让下塔吉尔和哈尔科夫搞合作,给187工程装上6TD-2柴油发动机,不过这一项目在1991年苏联解体后即告结束。

▲299工程

▲477工程

▲477工程和476工程
1992年6月8日,俄罗斯总统叶利钦参观下塔吉尔工厂。在此期间,工厂领导人与叶利钦谈妥了188工程的正式定型问题,当年10月5日被正式定型为T-90坦克。工程师米哈伊尔·什帕克在日记中记录了相关事宜,其中并没有提到187工程。
下塔吉尔是想继续搞187工程的,但是军方更想要哈尔科夫的477工程,就在1993年制定了新的技战术指标丢给下塔吉尔,顺带捎上了477工程的技术文件。总设计师波特金也不想依葫芦画瓢,总不能哈尔科夫跑了我还接他的盘吧,就拿着187工程和477工程合成出了195工程,但整个项目在2009-2010年间被叫停,之后俄罗斯在其基础上发展出了148工程,也就是今日的T-14阿玛塔。


▲195工程
目前,一共有4辆187工程的原型车幸存,即3,4,5和6号车,不仅锈迹斑斑,不少零部件也被人顺走。工厂和博物馆曾申请修复并展出187工程的原型车,最后也没有得到回应。过去被下塔吉尔寄予厚望的下一代坦克,如今被拆的七零八落,慢慢腐朽,不免令人唏嘘。


▲4号车与6号车
-
- 她19岁嫁人,活到了106岁,将13个儿女供成博士,一儿子闻名世界
-
2025-10-12 02:29:30
-
- 《金婚》播出14年,7位主演“戏如人生”,家家有本难念的经
-
2025-10-12 02:27:15
-
- 中国市值最高的10家上市公司,工商第四,第一市值高达2.8万亿元
-
2025-10-12 02:25:00
-
- 淘宝运营——无工作经验新手电商运营面试技巧(通用篇)
-
2025-10-12 02:22:45
-
- 自贡市第四人民医院:护航盐都百姓,救治急危重症显“硬核实力”
-
2025-10-12 02:20:29
-
- 实尾岛事件:韩国特种兵奉命前往朝鲜行刺,却杀向青瓦台
-
2025-10-12 02:18:15
-
- 马云想干啥?
-
2025-10-12 02:16:00
-
- 理论周刊|周文:加快建构中国自主的经济学知识体系,要把握好两个关键
-
2025-10-12 02:13:45
-
- “戏精导演”王永泉:与初恋妻子双向奔赴39年,带着儿子一起拍戏
-
2025-10-12 02:11:30
-
- 射程1.5万公里,足以覆盖美全境,朝鲜的洲际导弹有多厉害?
-
2025-10-12 02:09:15
-
- 东北“地下市长”黑老大乔四,强行霸占24位女星,91年被判死刑!
-
2025-10-12 02:07:00
-
- 王者荣耀下一个变异英雄揭秘:你准备好迎接挑战了吗?
-
2025-10-11 05:43:28
-
- 深圳旅拍婚纱照哪家好、哪家靠谱?深圳婚纱摄影排行榜,
-
2025-10-11 05:41:13
-
- 让黄药师叫苦的天罡北斗阵,有谁能破?放眼金书,仅此5人
-
2025-10-11 05:38:58
-
- 南派三叔:《盗墓笔记》
-
2025-10-11 05:36:43
-
- 民国滇系军阀主要派系一览表
-
2025-10-11 05:34:28
-
- 酷玩视频互动社区 聚集潮流运动牛人
-
2025-10-11 05:32:13
-
- 福州第十六中学奋力以赴省“八艺”展演
-
2025-10-11 05:29:58
-
- 大瓜!南昌一男一女被刺后续:行凶者为女子丈夫,警方正式回应!
-
2025-10-11 05:27:43
-
- 不作死就不会死!
-
2025-10-11 05:25:28



15本男主占有欲强的宠文小说推荐,《深渊女神》一生推
武汉17中上演教室门(武汉十七中教室门事件图)